サザエさんの家の価値は? 昭和と令和の“間取り”が示す時代の変化火曜日に「へえ」な話(1/3 ページ)

» 2025年04月29日 06時00分 公開
[土肥義則ITmedia]

 4月29日は昭和の日である。GW期間中の祝日ということもあって、全国でさまざまなイベントが行われているなか、今回のコラムでは昭和と令和の「間取りの変化」にスポットをあててみたい。

 昭和の家といっても、さまざまな間取りがあるわけだが、ここでは昭和30年代に多かった「サザエさんの家」をモデルに紹介しよう。磯野家(サザエさんの家)は、昔ながらの平屋住宅で、5LDKの庭付きである。住所は世田谷区桜新町2丁目25番で、敷地面積は約220平米ほど、建物面積は110平米ほど。

間取りはどのように変化したのか(出典:ゲッティイメージズ)
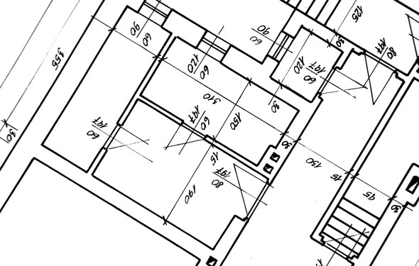
磯野家の間取り(コラビットが作成)

 では、人気アニメの主人公が住む家の価格は、いくらくらいなのか。築年数は不明な点が多いが、仮に築50年とする。不動産テックのコラビット(東京都港区)が提供するAI査定サービス「HowMa(ハウマ)」で調べたところ、2億2383万円だった。

 都市部のタワマンで2億円超えの物件がちょこちょこ出ているので「あれ、土地の広さは220平米でしょ。安くない?」と思われたかもしれないし、「いやいや、木造の平屋で、この価格は高いよ。普通のサラリーマンじゃ無理無理」などと感じられたかもしれない。

 建物面積は110平米ほどあるので、都市部で暮らすには「十分に広い」という印象も受けるが、この家に3世代8人が暮らしている。実際、1人当たりの空間は令和の家と比べても同じ……いや、むしろ狭いのではないか。

 カツオとワカメの部屋は2人で4.5畳、サザエ・マスオ・タラちゃんの部屋は3人で6畳である。「子どもたちが大きくなったら、どうするの?」と突っ込みたくなるが、狭いのにはちゃんと理由があった。「客間」の存在だ。

(出典:ゲッティイメージズ)

 磯野家にも家の中央に8畳の客間があるわけだが、この部屋は「人が暮らす」のではなく、「人をもてなす」ことに使われていた。当時、一軒家といえば、いわば”成功の証”でもあったので、親しい人を招く場所であったようだ。

 テレビは茶の間に1台、プロ野球のナイター中継などを見ながら家族がだんらんし、各自が部屋に戻るのは布団を敷くタイミングである。収納スペースは少なく、毎日、布団の上げ下げが必要であった。いまと違って、空調設備が十分ではなかったので、風通しや日当たりを意識した間取りが求められていたのだ。

       1|2|3 次のページへ

Copyright © ITmedia, Inc. All Rights Reserved.

アイティメディアからのお知らせ

SaaS最新情報 by ITセレクトPR
あなたにおすすめの記事PR