池に浮くメガソーラー、今後1年以内に10カ所に建設自然エネルギー

メガソーラーを建設する場所として、池の上に注目している企業がある。埼玉県桶川市の調整池にメガソーラーを建設することを決めているほか、今後1年間に全国10カ所の池の上にメガソーラーを建設する予定を立てている。

» 2012年11月08日 13時00分 公開
[笹田仁,スマートジャパン]

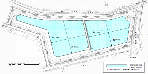
 水上メガソーラーの事業を進めているのは広島県で太陽光発電システムの設計、資材調達、設置工事を手掛けているウエストホールディングス。すでに、埼玉県桶川市の東部工業団地内にある調整池にメガソーラーを建設することで桶川市と合意している(図1)。

図1 ウエストホールディングスがメガソーラーを建設することを予定している調整池。埼玉県桶川市の東部工業団地内にある。水面の面積はおよそ2万9000m2

 この調整池には最大出力が1.36MW(1360kW)の太陽光発電システムを設置する。2013年6月に稼働開始の予定。

地上のメガソーラー用地は争奪戦で賃料上昇

 ウエストホールディングスは池の上へのメガソーラー建設を進める理由として、地上でメガソーラーに適した土地を入手することが難しくなりつつあるという点を挙げている。再生可能エネルギーの固定価格買取制度が始まり、メガソーラーを建設して発電事業に参入する企業が急増している。地上のメガソーラーに適した土地をめぐって企業同士で争奪戦を繰り広げており、土地の賃貸借料は高騰する一方だという。

 一方、池の上はメガソーラー用地としてはまだ手付かずの状態。ウエストホールディングスの調べでは、メガソーラー建設に適した池は日本全国でおよそ790カ所あるという。

水上ならではのメリット

 池の上に設置することによって得られるメリットもある。水面上に太陽光発電パネルを設置するため、パネルの温度が上がりにくく、発電量が上がるのだ。さらに太陽光発電パネルで太陽光が水面に当たりにくくなるため、アオコの異常発生を抑えられるという。

 ウエストホールディングスは、水上メガソーラーを実現するために、韓国のLS産電と協力していくという。LS産電は、水上に設置することを想定した太陽光発電システムを開発しており、防水、絶縁、耐食処理を適切に施した太陽光発電パネルも出荷している。韓国国内ではすでに設置実績があるという(図2)。

図2 LS産電の水上向け太陽光発電システムの設置例

 水上に設置するためにかかってしまう余計なコストも問題にならなくなっているという。池の上にメガソーラーを設置すると、太陽光発電システムを水上に浮かせる形になる。強風や波で動いてしまわないように、太陽光発電システムからロープを伸ばして水底に固定するなど、地上に設置する場合には発生しないコストが発生する。このような水上ならではのコストを考えても、資材、施工費など建設に必要な費用全体で見ると、陸上にメガソーラーを建設する場合とほぼ変わらないという。

 ウエストホールディングスは桶川市のほか、大阪府泉佐野市とも水上メガソーラー設置計画を進めている。泉佐野市内にある公園池(水面の面積はおよそ11万8000m2)に、最大出力2MW(2000kW)のメガソーラーを建設する計画だ。さらに、今後1年間の間に日本全国の10カ所に水上メガソーラーを建設することを予定している。10カ所の合計最大出力は20MW(2万kW)となる見込み。

Copyright © ITmedia, Inc. All Rights Reserved.

特別協賛PR
スポンサーからのお知らせPR
Pickup ContentsPR
あなたにおすすめの記事PR